WWA Enthärtungsanlage mit Keimschutzvorrichtung
Typ: VAK-C-CL 15
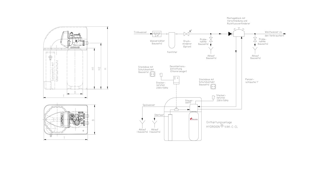
Wasserenthärtungsanlage zur Enthärtung / Teilenthärtung von kaltem Trinkwasser.
Ausführung gem. DIN EN 14743 und DIN 19636-100. Regeneration mit Sparbesalzung und Anlagenhygienisierung.
• Anlagenbeschreibung / Lieferumfang:
• 1x Drucktank
• 1x Ionenaustauscherharz lebensmittelgerecht
• 1x Zentralsteuerventil aus Noryl (1″) mit integrierter Verschneidung
• 1x Netzteil
• 1x Kabinettbehälter
• 1x Solesicherheitsventil
• 1x Turbinenwasserzähler
• 1x Keimschutzvorrichtung (3/8″) mit Steuereinheit
• 1x Bedienungsanleitung
• 2x Panzerschlauch 1″ ÜM 800mm
NUR DIE ANLAGE!
Die Anlage ist geeignet für einen 4-6 Personen-Haushalt!
(bei 20° dH Eingangshärte)



There are no reviews yet.